導讀: 湖北 · 黃石科利足跡湖北黃石作為國內礦冶文明的發源地之一,憑借豐沛的礦山資源孕育著我國近代的民族工業。其中主要以重質碳酸鈣礦作為優勢資源,該礦種以大儲量、多品類為特...

湖北 · 黃石
科利足跡
湖北黃石作為國內礦冶文明的發源地之一,憑借豐沛的礦山資源孕育著我國近代的民族工業。其中主要以重質碳酸鈣礦作為優勢資源,該礦種以大儲量、多品類為特點,逐漸發展了一批圍繞礦山石材上下游產業鏈的工業企業。
近年來,當地工業以開采-加工-銷售全鏈模式為核心,憑借自然資源的富集,不斷拓展下游加工方案,迅速凝聚起一個又一個產業集群。
項目概況
湖北黃石大型礦產公司經老顧客介紹,線上溝通直購兩條科利瑞克HGM100P超細磨粉機生產線。卓越科利設備落戶礦產資源大省,助力非金屬礦石精細化生產。
本期物料詳解:重質碳酸鈣

重質碳酸鈣超細粉
作為高品質無機化學物質,其顆粒度非常小,平均粒徑<1μm,以高白度、高純度為特點,是一種非常優質的粉體材料;
常見用途
工業用途:1、陶瓷原料添加劑;2、橡膠原料添加劑;3、涂料添加劑,提升原料各方面性能;
消費品用途:1、化妝品添加劑,增加光澤度等;2、醫藥藥品增稠等;

項目故事
01.助力礦山資源加工直銷

黃石當地礦山制造企業總負責人獲批后承包下當地一座礦山的開采權。手握當地一座礦山的資源,在周邊配套企業的發展下如日中天,迅速擴張為當地龍頭企業。卻由于加工工藝受限,通常僅以初步破碎的大型石料出售給當地建筑石材企業,過程中物料造成了極大的浪費。
產成品用途受限的情況使得產品附加值始終再難拓展,企業負責人期望能夠對其所儲備的高質量礦石初級產品進行精加工,在提升產品附加值的同時拓展產成品用途,聯動礦山周圍高端油漆市場、管材市場企業、形成更加可觀的產業規模。
有了這個想法,客戶公司開始在國內積極尋找優質設備供應商,在當地同行的介紹下聯系到了上海科利瑞克機器有限公司。
02.聯動周邊產業集群優勢
在與科利瑞克選型團隊通過線上接洽基本情況后了解到:
1)細度、時產要求須提升市場適配度:
礦山周邊已具備相當程度的銷售企業(油漆廠、管材廠等),未來該部分將作為主要面向的銷售渠道。
2)保證設備的細度范圍可調節:
未來還需拓展其他物料用途,將對細度與產量提出新要求。
3)保證高質量連持續生產能力:
設備的時產需求、總產量要求都較為龐大。
4)對現有生產場地進行規劃:
考慮存在設備新增的擴產需求,提高場地利用率。
03.卓越設備驅動互信合作

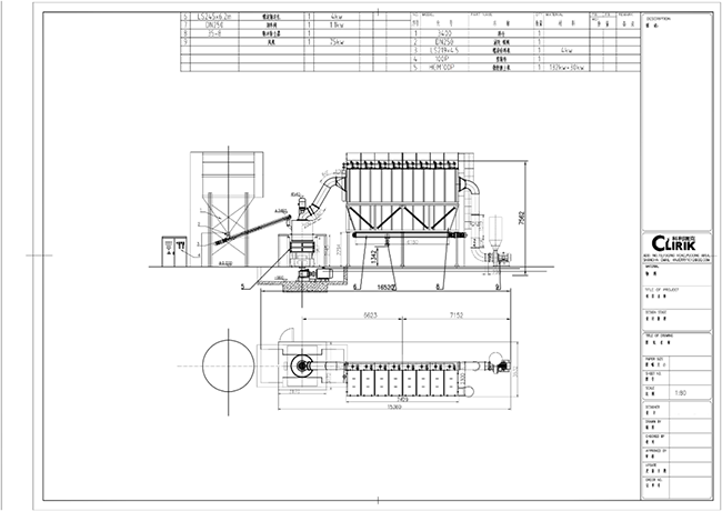
設備選型方案圖紙
綜合考慮客戶需求與生產場地條件,科利瑞克向客戶公司推薦了HGM100系列超細磨粉機生產線,并根據具體生產需求進行了個性化調整:
1)調整分析機葉輪間隙:
在保證細度的條件下,顯著提高時產量。
2)調整助磨劑種類:
提高對接成品市場適應性。
3)生產線中替換減速機,改為75w雙電機對拉傳動配置:
有效控制成本,個性化契合客戶需求。
4)科利服務全程陪伴:
科利瑞克全程負責場地再規劃。
工藝亮點與流程
工藝亮點
1、客戶采購兩條HGM100P系列超細粉體生產線,在合理調整分析機葉輪的條件下能做到200-1500目的任意調節,200-325目細度單條時產量達9-10噸。
2、添加風旋分析機的條件下,可達到2500目的細度。大大拓展了產成品下游的適用范圍。
3、設備高質量組件保證安全穩定生產,無滾動軸承與螺釘的設計避免密封件、螺絲松動后損壞機器的問題。
4、由特殊耐磨材料煅制而成的磨輥、磨環,在提升耐用程度的同時提供全天候運行能力。
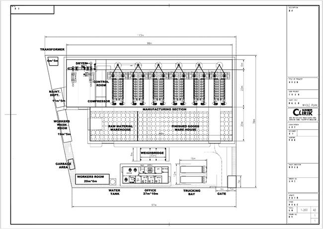
5、合理改造場地現有設置,在符合防火、安全、衛生、交通運輸和環境保護等相關規定下,設備更加靠近原料,與當地交通運輸條件相接洽,連接場外通路、港灣,保證生產運輸及時性。

場地規劃圖紙
工藝流程
裝載機將破碎后粒徑大小在500毫米以下的礦石輸送至一級震動給料機,通過變頻電機智能調節進料速度,保證大塊礦石輸送至二級震動給料機時平穩、均勻。
隨后礦石將被輸送入一級鄂式破碎機破碎至150毫米以下,同時均勻落在底部皮帶輸送機上。現場工作人員負責檢查篩選出皮帶上的低品位礦石,以有效提高礦石的白度與品位。經過挑選后再次進入二級錘式破碎機,進一步細碎。
礦石最后進入底部垂直提升機,將物料提升至料倉頂部再通過提升機輸送至磨粉生產線的進料緩沖倉。倉內安裝有電子安全限位裝置,限位裝置將進行智能化全時段安全生產監控,當限位報警時,需及時補充或停止原料的供應。
項目信息
生產線:2條HGM-100P超細磨粉機生產線
加工物料:重質碳酸鈣
成品粒度:200-1500目
年產能:80000-100000噸
設備配置:1臺HGM100P主機、1臺選粉機、1臺風機、1臺錘式破碎機、1臺斗式提升機、1臺螺旋給料機、2臺卸料閥、1臺空壓機、1臺脈沖除塵器。(單條)
產成品用途:陶瓷、涂料、化妝品添加劑等
現場圖集





Copyright(C)2020 上海科利瑞克機器有限公司 版權所有 All Rights Reserved
熱線電話:189-1696-2723 QQ:1562698298 客服郵箱:sales@clirik.com
公司地址:中國-上海-浦東新區-合慶鎮福慶路19號 網站備案號:滬ICP備09056488號-1
網站地圖